価格

成約済

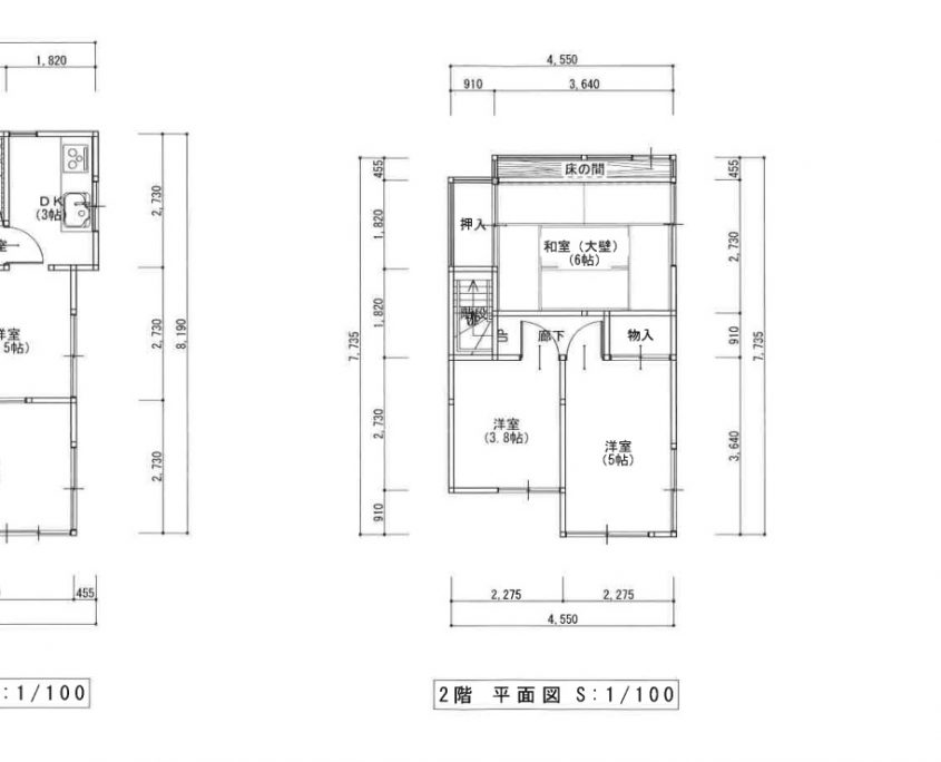
間取り

4DK

築年月

昭和63年8月築

所在地

世田谷区祖師谷五丁目

交通

小田急線【祖師ヶ谷大蔵】駅 徒歩 14 分

接道

西側 4m 公道

土地権利

所有権

セットバック

私道負担面積

都市計画

市街化

地目

宅地

用途地域

第一種低層住居専用地域

国土法届出

土地面積

59.14㎡

延床面積

76.71㎡

構造

木造3階建

建ぺい率/容積率

40/80

引渡し

即時

現況

空家

取引形態

媒介

設備

備考

ウルトラマン商店街すぐ近く

スーパーサミットまで徒歩約2分

収納に便利なグルニエ有